公司简介 公司新闻 综合资讯 产品展示 产品目录 客户反馈 联系我们 电子邮局
  主要产品为静态混合器、动态混合设备、传热反应设备、过滤设备、消声设备、阻火设备等

混合器
塔式反应器
管式反应器
环管反应器
高效换热器
萃取塔
管道过滤器
自清洗过滤器
空气过滤器
灭菌过滤器
滤件系列
精细过滤器
粉体输送设备
粉体混合设备
液体搅拌设备
消声器
特种小型设备
排水器
纸浆漂白专用设备
除污器(滤水器)
喷射器
纤维除雾器
自动进料搅拌釜

 
喷射器
PSQ-型蒸汽喷射真空泵
PSG-气固喷射器
PSB电线电缆燃烧仪检测喷射器
PSC活性炭喷射器
PSS水泵房喷射节能器
PSY生物柴油喷射器
PST脱硫喷射器
PSD-地坑喷射器
PSJ喷射加热器
罐用喷射器
PSK开工抽引器
PSZ罐底焊缝真空检漏盒抽空器
液固喷射器
抽空器
 
C2H2V/N型内外筒式乙炔回火防止器
1、产品用途
内外筒式乙炔回火防止器为防爆产品。适用于乙炔气(或其它可燃气体)管道中间和乙炔气用户点,能有效防止和消除管道回火。其原理是:在产生管道回火的情况下,(1)由于瞬时压力升高时使位于底部的阀芯下落堵位气口及时切断气源;(2)当瞬时压力升高到大于0.177~0.275MPa时,设置在筒体顶部的安全膜片爆破随即泄压,切断火源,确保系统安全。对于乙炔气或其它液化气的供应单位和使用单位来说,如果还没有其它能有效防止回火措施的话,本产品应是可以考虑的。
2、结构特点
2.1内筒体顶端为安全膜盖结构,当系统压力升至0.177~0.275MPa时膜片会自动爆破泄压。因此用户在调换膜片时,不得使用厚度超过0.05的铝板,且一定要经过试验后才能安装。
2.2内外筒体具有贮气,稳压作用,能减少供气压力的波动,有利于平稳燃烧。
2.3本产品在使有用前应拧开水位阀芯,从孔口灌水至溢出即拧紧,不得漏气和漏水,灌水具有防止回火和清选 气体的作用。
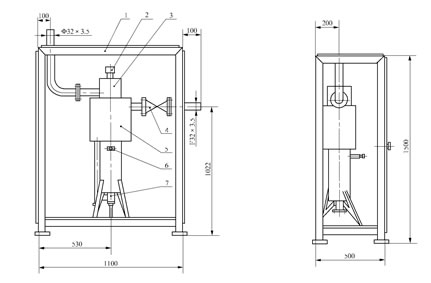
3、产品外形尺寸及部件名称见下图
4、主要技术参数
公称通径(mm)
DN25
设计压力(MPa)
PN0.15
使用压力(MPa)
PN0.02~0.12
使用温度(℃)
常温
流量(Nm3/h)
35
爆破压力(MPa)
PN0.177~0.275
重量(kg)
220
 说明:连接法兰按JB/T81-94设计制造,用户如需选用其它标准和规格的连接法兰,请在订货中说明。
 
南通沃尔驰石化工程有限公司 地址:启东市汇龙镇中央河中路691号 邮编:226200 http://www.qdywyc.com E-mail:13862978163@126.com
电话:0513-83325673 传真:0513-83119878 手机: 13862978163
星形给料机|旋转加料器|叶轮给料机